Prime Legend - Floor Plans
First Floor Plan
Typical Floor Plan (2 to 9 Floors)
Area in Sft : 2030
Area in Sft : 1958
Area in Sft : 1939
Area in Sft : 1958
Area in Sft : 1340
Area in Sft : 2066
Area in Sft : 1979
Area in Sft : 1846
Area in Sft : 1829
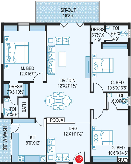
Area in Sft : 1222
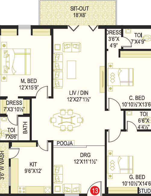
Area in Sft : 1222
Area in Sft : 1198
Area in Sft : 1293
Area in Sft : 1780
Area in Sft : 1864